56.95m²
1
1
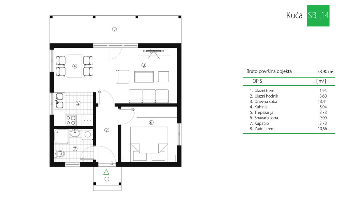
| br. | Prostorija | Površina |
|---|---|---|
| 1. | Ulazni trem | 1.95 |
| 2. | Ulazni hodnik | 3.60 |
| 3. | Dnevna soba | 13.41 |
| 4. | Kuhinja | 5.04 |
| 5. | Trepezarija | 3.78 |
| 6. | Spavaća soba | 9.00 |
| 7. | Kupatilo | 3.78 |
| 8. | Zadnji trem | 10.56 |
| 51.12 m² | ||
Montažna kuća SB_14 ima izvanrednu toplotnu izolaciju i postojan kvalitet gradnje za ekonomičnu cenu.
Moguće je celokupne radove od završetka temelja do useljenja izvesti do 40 dana, ukoliko su ispunjeni svi ugovorni preduslovi.
Kuća SB_14 ima bruto površinu od 58,90 m2 sa tremom ka dvorištu, prostranom dnevnom sobom, spavaćom sobom, kuhinjom sa trpezarijom, hodnikom i kupatilom.
Minimalna, preporučena površina placa je 2,5 ara. Poželjna orijentacija kuće je sa ulazom na istoku.
Sistem „ključ u ruke“.