BRUTO POVRŠINA

34.93m²

BROJ ETAŽA

1

BROJ SPAVAĆIH SOBA

1

ROK IZRADE

7 - 10 dana

MASTER 30

Plan kuće se može modifikovati i izmeniti prema želji kupca

Vreme montaže objekta: 7 do 10 dana

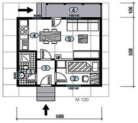
Površina osnove: 34.93m2

* 1.Predsoblje: 2.16 m2
* 2.Spavaća soba 5.22 m2
* 3.Kupatilo 2.64 m2
* 4.Kuhinja 2.76 m2
* 5.Dnevna soba 12.09 m2
* 6.Terasa 3.92 m2

Ukupna korisna površina: 28.79 m2

  • Cena siva faza: 310 – 370€
  • Cena ključ u ruke: 580 – 650€
  • Adresa: Miloša Đelkapića bb, Ivanjica
ZATRAŽITE PONUDU ILI ZAKAŽITE SASTANAK

    Siva faza:
    310 – 370€
    Ključ u ruke:
    580 – 650€