BRUTO POVRŠINA

97.72m²

BROJ ETAŽA

2

BROJ SPAVAĆIH SOBA

2

ROK IZRADE

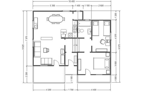
MODEL 30

Savršeno spakovana širokoj primeni kuća Model 30 bruto površine 97.72 m2 je projektovanjem zamišljena kao kaskadna varijanta i predviđena je kao trosobni stan koji se sastoji od dnevnog dela: kuhinja, trpezarija, dnevni boravak sa izlazom na terasu, kupatilo, i od spavaćeg dela; dve spavaće sobe. Pogodna je za placeve u nagibu i svojim korisnicima nudi vrstu slobode kakvu nude i kuće većih kvadratura.

  • Cena siva faza: 320 - 450€
  • Cena ključ u ruke: 530 - 690€
  • Adresa: Lisa bb, Ivanjica
ZATRAŽITE PONUDU ILI ZAKAŽITE SASTANAK

    Siva faza:
    320 - 450€
    Ključ u ruke:
    530 - 690€