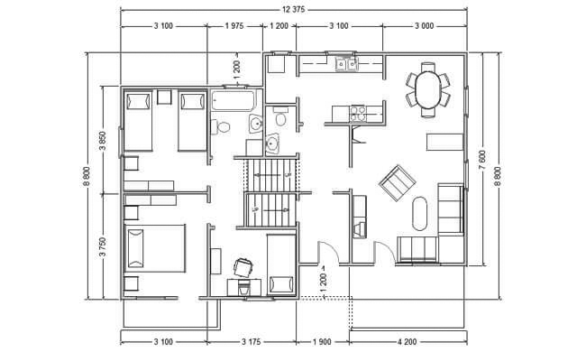
BRUTO POVRŠINA

111.42m²

BROJ ETAŽA

1

BROJ SPAVAĆIH SOBA

2

ROK IZRADE

MODEL 31

Garažno-podrumski prizemni deo sačinjen je od čvrstog materijala, a stambeni deo sadrži tri spavaće sobe, wc, ostavu, kuhinju i dnevni boravak sa trpezarijom. Spavaći deo i kupatlo su smešteni iznad garaže, dok dnevna grupa prostorija zauzima nižu etažu. Terasa i balkon gledaju na prednji deo kuće i formiraju raskošno lice eksterijera.

  • Cena siva faza: 320 - 450€
  • Cena ključ u ruke: 530 - 690€
  • Adresa: Lisa bb, Ivanjica
ZATRAŽITE PONUDU ILI ZAKAŽITE SASTANAK

    Siva faza:
    320 - 450€
    Ključ u ruke:
    530 - 690€