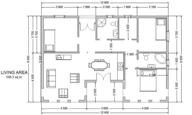
BRUTO POVRŠINA

108.36m²

BROJ ETAŽA

1

BROJ SPAVAĆIH SOBA

3

ROK IZRADE

MODEL 33

Moderna montažna kuća savremenog je rasporeda prostorija, projektovana je kao četvorosoban stan sa nešto većim dnevnim boravkom i sa puno svetlosnih otvora. Prostrana dnevna grupacija prostorija uključuje kuhinju, trpezariju i veliki dnevni boravak koji se širi na terasu kroz velike svetlosne površine. Iz spavaće sobe je omućen pristup na istu terasu i sa identičnim otvorima ističe simetrični izgled levog i desnog dela kuće koji je otvoren dvorišnim površinama.

  • Cena siva faza: 320 - 450€
  • Cena ključ u ruke: 530 - 690€
  • Adresa: Lisa bb, Ivanjica
ZATRAŽITE PONUDU ILI ZAKAŽITE SASTANAK

    Siva faza:
    320 - 450€
    Ključ u ruke:
    530 - 690€