BRUTO POVRŠINA

134.97m²

BROJ ETAŽA

2

BROJ SPAVAĆIH SOBA

4

ROK IZRADE

MODEL 35

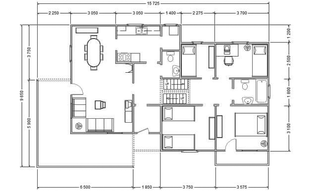
Prizemni deo je od čvrstog materijala, garažno-podrumski deo, a stambeni deo sadrži četiri spavaće sobe, kupatilo, wc, ostavu, kuhinju i dnevni boravak sa trpezarijom. Denivelacija dve prostorne celine od 120cm omogućava unutrašnju povezanost garažno podrumskog dela sa stambenim. Komforan i prostran dnevni boravak je dosta osvetljen iako se natkrivena terasa prostire sa obe strane. Odvojena kuhinja sa ostavinskim delom, ne povećava utisak smanjenog prostora za dnevne aktivnosti.

  • Cena siva faza: 320 - 450€
  • Cena ključ u ruke: 530 - 690€
  • Adresa: Lisa bb, Ivanjica
ZATRAŽITE PONUDU ILI ZAKAŽITE SASTANAK

    Siva faza:
    320 - 450€
    Ključ u ruke:
    530 - 690€