111.42m²
1
2
30 dana
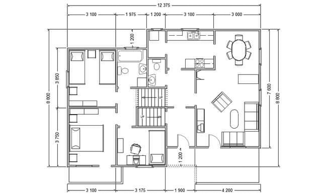
Montažna kuća AX-101 bruto površine 111,42 m2 (neto površine 99,5 m2) iz kategorije poluspratnih (kaskadnih) montažnih objekata. Denivelacija unutrašnjeg prostora doprinela je i dinamičnom izgledu krova. Garažno-podrumski prizemni deo sačinjen je od čvrstog materijala, a stambeni deo sadrži tri spavaće sobe, wc, ostavu, kuhinju i dnevni boravak sa trpezarijom. Spavaći deo i kupatlo su smešteni iznad garaže, dok dnevna grupa prostorija zauzima nižu etažu. Terasa i balkon gledaju na prednji deo kuće i formiraju raskošno lice eksterijera.