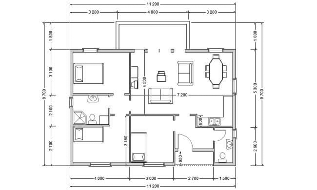
BRUTO POVRŠINA

102.40m²

BROJ ETAŽA

1

BROJ SPAVAĆIH SOBA

3

ROK IZRADE

30 dana

MODEL AX-102

  • Cena siva faza: od 400€
  • Cena ključ u ruke: od 600€
  • Adresa: Ivanjica
ZATRAŽITE PONUDU ILI ZAKAŽITE SASTANAK

    Siva faza:
    od 400€
    Ključ u ruke:
    od 600€