BRUTO POVRŠINA

122.38m²

BROJ ETAŽA

1

BROJ SPAVAĆIH SOBA

2

ROK IZRADE

30 dana

MODEL AX-105

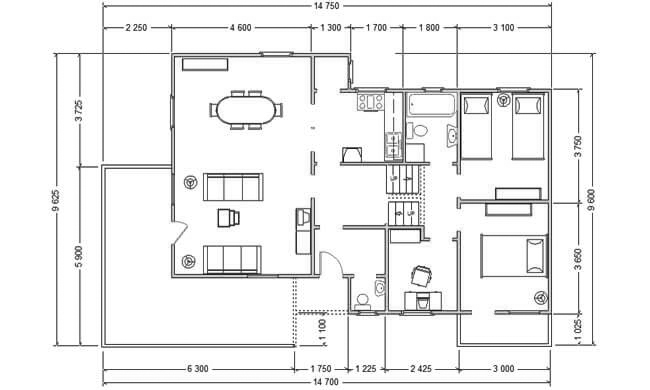
Montažna kuća AX-105 građevinske bruto površine 122,38 m2(neto površine 111,57 m2) po tipologiji je poluspratna, kaskadna varijanta. Prizemni deo je od čvrstog materijala, (garažno-podrumski), a stambeni deo sadrži tri spavaće sobe, kupatilo, wc, ostavu, kuhinju i dnevni boravak sa trpezarijom. U gornjoj etaži je sadržan spavaći deo u čijem nivou je i kupatilo. Ispod višeg dela je garaža sa podrumskim prostorima koji se mogu prilagoditi različitim namenama. Dnevni deo sa trpezarijom je jednostavne pravougaone orjentacije, a kuhinjski deo sa ostavom je odvojen od ove udobne i društvene prostorije. Dinamičan krov razdvojen u dve celine daje prepoznatljiv izgled ovakvih tipova kuća.

  • Cena siva faza: od 400€
  • Cena ključ u ruke: od 600€
  • Adresa: Ivanjica
ZATRAŽITE PONUDU ILI ZAKAŽITE SASTANAK

    Siva faza:
    od 400€
    Ključ u ruke:
    od 600€