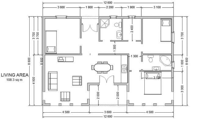
108.36m²
1
3
30 dana
Moderna montažna kuća AX-108 savremenog je rasporeda prostorija, projektovana je kao četvorosoban stan sa nešto većim dnevnim boravkom i sa puno svetlosnih otvora. Prostrana dnevna grupacija prostorija uključuje kuhinju, trpezariju i veliki dnevni boravak koji se širi na terasu kroz velike svetlosne površine. Iz spavaće sobe je omućen pristup na istu terasu i sa identičnim otvorima ističe simetrični izgled levog i desnog dela kuće koji je otvoren dvorišnim površinama. Planski dimenzionirane prostorije osiguravaju tročlanoj porodici najviši nivo komfora. Glavni izražaj atraktivnog izgleda su svakako duži prozori i balkonska vrata.