BRUTO POVRŠINA

50.38m²

BROJ ETAŽA

1

BROJ SPAVAĆIH SOBA

1

ROK IZRADE

30 dana

MODEL AX-44b

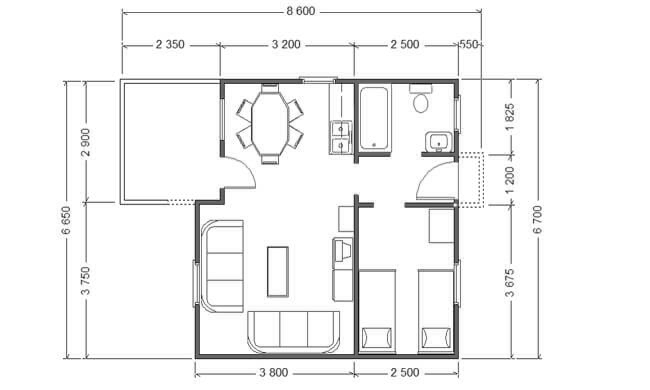
Vikend kuća AX-44b bruto površine 50,38 m2 (neto površine 45,46 m2) se sastoji od jedne spavaće sobe, kupatila, dnevnog dela. Dnevnu grupu prostorija čine dnevni boravak spojen sa trpezarijom i kuhinjom. Natkrivena terasa komunicira sa prostorijama namenjenim odmoru pomoću balkonskih vrata. Jednostavna forma krova orjentisana kroz dvovodne krovne ravni daje elegantan izgled cele kuće. Kombinacijom boja fasade može se postići tradicionalna ili savremena forma.

  • Cena siva faza: od 400€
  • Cena ključ u ruke: od 600€
  • Adresa: Ivanjica
ZATRAŽITE PONUDU ILI ZAKAŽITE SASTANAK

    Siva faza:
    od 400€
    Ključ u ruke:
    od 600€