BRUTO POVRŠINA

65.03m²

BROJ ETAŽA

1

BROJ SPAVAĆIH SOBA

2

ROK IZRADE

30 dana

MODEL AX-59

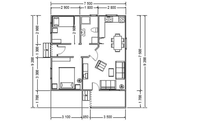
Stambena kuća AX-59 bruto površine 65,03 m2.(neto površine 57,53 m2) je predviđena kao trosobni stan i sastoji se od dnevnog dela :kuhinja, trpezarija, dnevni boravak sa izlazom na terasu, kupatilo, i od spavaćeg dela; dve spavaće sobe.

  • Cena siva faza: od 400€
  • Cena ključ u ruke: od 600€
  • Adresa: Ivanjica
ZATRAŽITE PONUDU ILI ZAKAŽITE SASTANAK

    Siva faza:
    od 400€
    Ključ u ruke:
    od 600€