76.35m²
1
2
30 dana
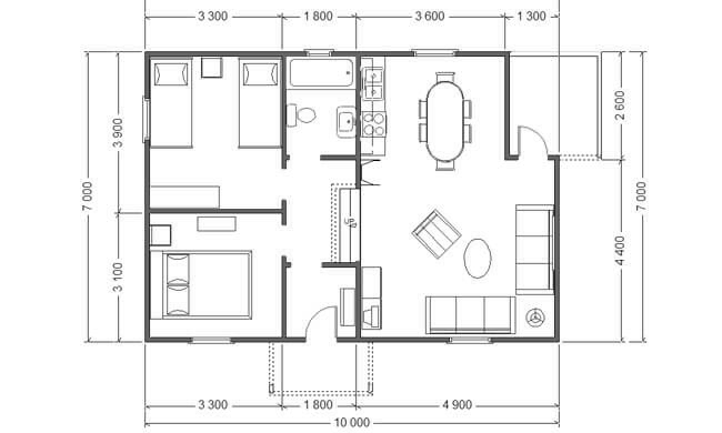
Stambena kuća AX-68 bruto površine 76,35 m2(neto površine 68,32 m2) je projektovana kao trosobni stan jednostavne orijentacije za komforno stanovanje. Unutrašnji prostor je jasno podeljen u dve celine koje denivelacijom istuču svoju delimičnu individualnost. Dnevni boravak, sa otvorenom trpezarijom i kuhinjom zauzima nižu etažu, a dve spavaće sobe i kupatilo su u ravni višeg nivoa. Dnevni prostor obogaćuje natkrivena terasa. Razilka u visini se pojavljuje i u krovu, a natkrivanje ulaznog dela i terase obogaćuje arhitekturu krovnih ravni.