BRUTO POVRŠINA

140.65m²

BROJ ETAŽA

2

BROJ SPAVAĆIH SOBA

3

ROK IZRADE

30 dana

MODEL AX-127

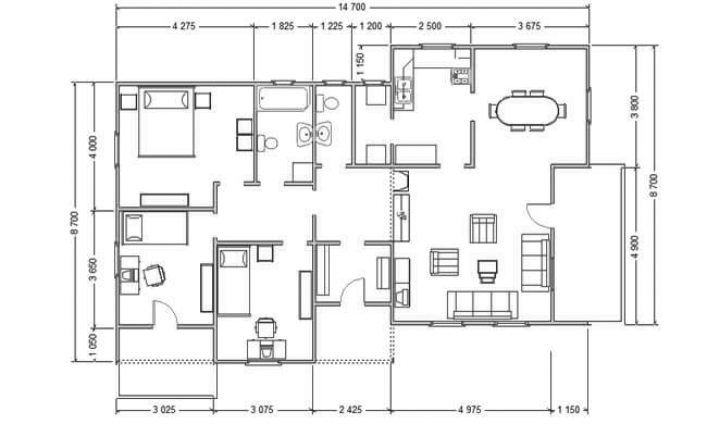
Montažna kuća AX-127 građevinske bruto površine 140,65 m2(neto površine 126,84 m2) funkcionalno je koncipirana kao četvorosobni stan koji ima tri spavaće sobe, kupatilo, wc, ostavu, kuhinju i dnevni boravak sa trpezarijom. U sastavu ove površine nalaze se i dve terase. Ova prizemna kuća formalno je podeljena u dva dela. Visinska razlika i smaknuće doprineli su i dinamičnom izgledu krova. Fizički odvojena kuhijna ima i odvojeni špajz za odlaganje namirnica. Balkonska vrata povezuju natkrivenu terasu koja je uvučena u otvoreni prostor dnevnog boravka. Kao celina pruža prijatan ambijent porodičnom življenju.

  • Cena siva faza: od 400€
  • Cena ključ u ruke: od 600€
  • Adresa: Ivanjica
ZATRAŽITE PONUDU ILI ZAKAŽITE SASTANAK

    Siva faza:
    od 400€
    Ključ u ruke:
    od 600€