BRUTO POVRŠINA

48.20m2m²

BROJ ETAŽA

1

BROJ SPAVAĆIH SOBA

1

ROK IZRADE

TERRA 84

TERRA 84

Revolucionarna montažna mobilna kuća koja spaja održivost, luksuz i modularni dizajn kako bi pružila jedinstveno iskustvo života u skladu s prirodom.

OPCIONO: Nameštaj, oprema i premium dodaci se dodatno naplaćuju

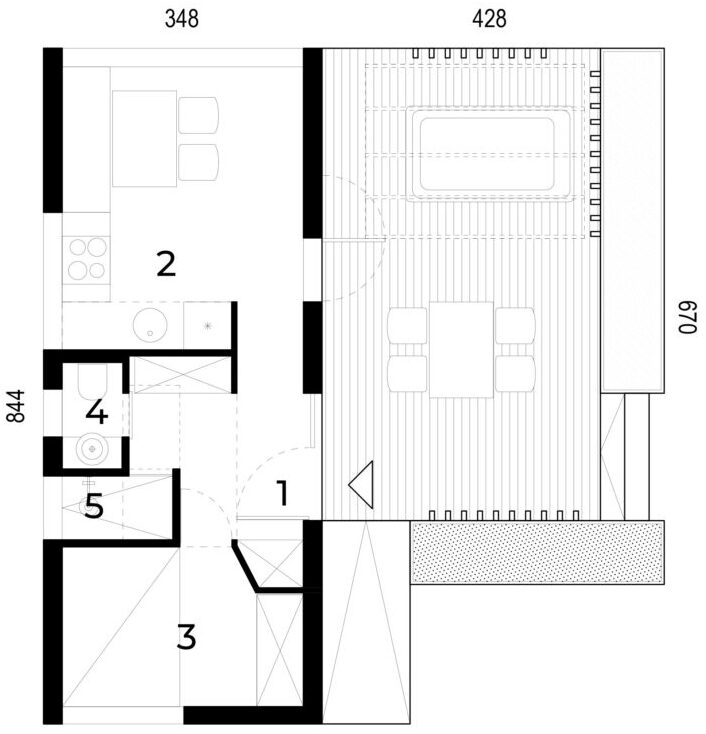
Neto površina kuće: 23.63 m²

Neto površina terase: 18,81 m²

1. Ulaz

Plakar sa cipelarom

Visoki garderober

2. Kuhinja

Komplet

Trpezarija

TV set

Klupa za sedenje i odlaganje stvari sa dušekom

Trpezarijski sto sa 2 stolice

3. Soba za spavanje

Radni sto

Krevet sa dušekom

Plakar iz dva dela po visini

4. WC

WC šolja konzolna

Lavabo sa ormarićem

5. Tuš kabina

Komplet

Terasa

Neto površina 18.81 m²

Baštenska garnitura sa 4 stolice

*Premium dodaci

Jacuzzi

Kamin

Solarna elektrana

Venecijaneri spoljni i unutrašnji

  • Cena siva faza: Posaljite Upit
  • Cena ključ u ruke: Pošaljite Upit
  • Adresa: Beograd
ZATRAŽITE PONUDU ILI ZAKAŽITE SASTANAK

    Siva faza:
    Posaljite Upit
    Ključ u ruke:
    Pošaljite Upit