BRUTO POVRŠINA

125.89m²

BROJ ETAŽA

1

BROJ SPAVAĆIH SOBA

7

ROK IZRADE

TIP 110

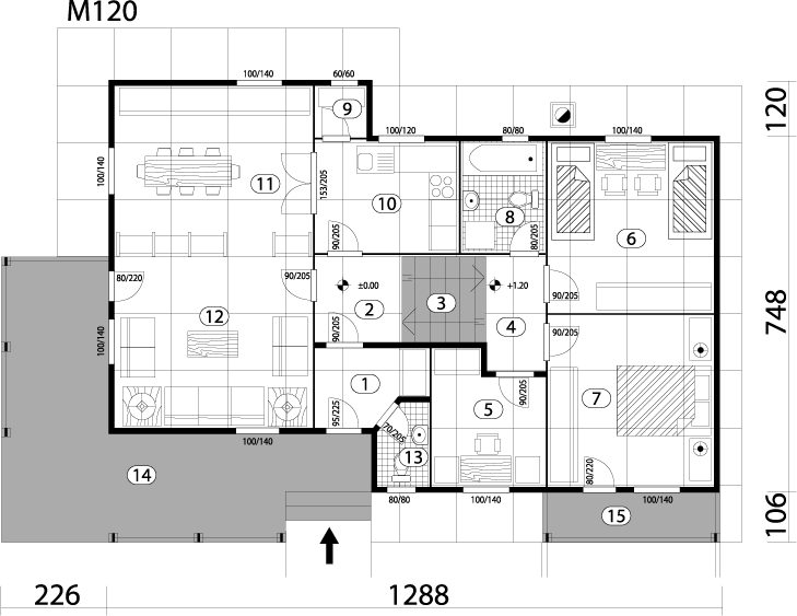
Raspored prostorija

Br. Prostorija Površina
1 Vetrobran 3.37 m2
2 Predsoblje 3.24 m2
3 Stepenište 3.24 m2
4 Galerija 2.88 m2
5 Radna soba 5.89 m2
6 Dečija soba 12.42 m2
7 Spavaća soba 12.42 m2
8 Kupatilo 3.91 m2
9 Ostava 1.21 m2
10 Kuhinja 6.90 m2
11 Trpezarija 14.76 m2
12 Dnevni boravak 14.76 m2
13 Toalet 1.88 m2
14 Terasa 25.02 m2
15 Balkon 3.91 m2

  • Cena siva faza: 320 - 440€
  • Cena ključ u ruke: 530 - 680€
  • Adresa: Boška Petrovića 2a, Ivanjica
ZATRAŽITE PONUDU ILI ZAKAŽITE SASTANAK

    Siva faza:
    320 - 440€
    Ključ u ruke:
    530 - 680€