BRUTO POVRŠINA

146.90m²

BROJ ETAŽA

1

BROJ SPAVAĆIH SOBA

8

ROK IZRADE

TIP 135

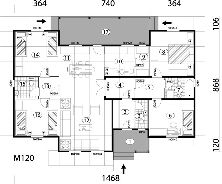
Raspored prostorija

Br. Prostorija Površina

1 Ulaz 6.01 m2
2 Vetrobran 3.68 m2
3 Toalet 2.76 m2
4 Predsoblje 3.74 m2
5 Degažman 4.08 m2
6 Dečija soba 10.15 m2
7 Kupatilo 3.91 m2
8 Spavaća soba 12.60 m2
9 Ostava 2.88 m2
10 Kuhinja 5.03 m2
11 Trpezarija 12.96 m2
12 Dnevna soba 19.74 m2
13 Degažman 2.72 m2
14 Dečija soba 12.60 m2
15 Kupatilo 3.06 m2
16 Spavaća soba 10.15 m2
17 Terasa 18.32 m2

  • Cena siva faza: 320 - 440€
  • Cena ključ u ruke: 530 - 680€
  • Adresa: Boška Petrovića 2a, Ivanjica
ZATRAŽITE PONUDU ILI ZAKAŽITE SASTANAK

    Siva faza:
    320 - 440€
    Ključ u ruke:
    530 - 680€