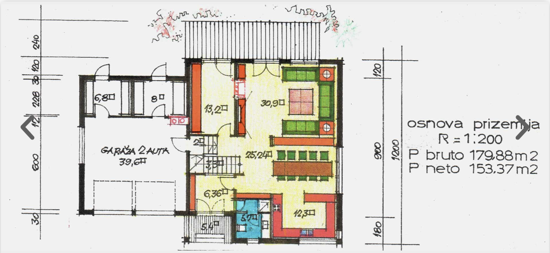
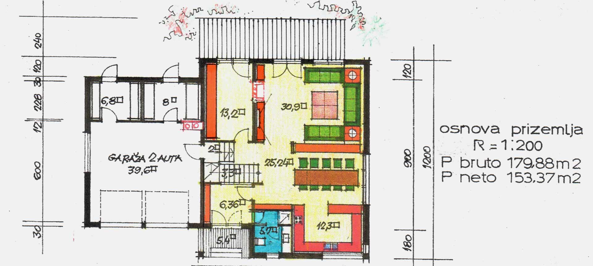
BRUTO POVRŠINA

323.40m²

BROJ ETAŽA

2

BROJ SPAVAĆIH SOBA

5

ROK IZRADE

TIP 323 K

  • Cena siva faza: Pošaljite Upit
  • Cena ključ u ruke: Pošaljite Upit
  • Adresa: Mrkočevac 26b, Ivanjica
ZATRAŽITE PONUDU ILI ZAKAŽITE SASTANAK

    Siva faza:
    Pošaljite Upit
    Ključ u ruke:
    Pošaljite Upit