BRUTO POVRŠINA

44.24m²

BROJ ETAŽA

1

BROJ SPAVAĆIH SOBA
ROK IZRADE

TIP 40

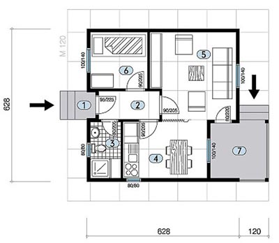
Raspored prostorija

Br. Prostorija Površina
1 Ulaz 1.9 m2
2 Predsoblje 3.12 m2
3 Kupatilo 2.76 m2
4 Kuhinja 8.08 m2
5 Dnevna soba 11.95 m2
6 Terasa 5.92 m2

  • Cena siva faza: 320 - 440€
  • Cena ključ u ruke: 530 - 680€
  • Adresa: Boška Petrovića 2a, Ivanjica
ZATRAŽITE PONUDU ILI ZAKAŽITE SASTANAK

    Siva faza:
    320 - 440€
    Ključ u ruke:
    530 - 680€