BRUTO POVRŠINA

55.50m²

BROJ ETAŽA

1

BROJ SPAVAĆIH SOBA

5

ROK IZRADE

TIP 52

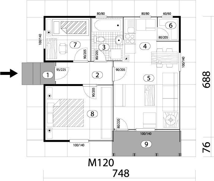
Raspored prostorija

Br. Prostorija Površina
1 Ulaz 1.83 m2
2 Predsoblje 3.48 m2
3 Kupatilo 3.68 m2
4 Kuhinja 5.51 m2
5 Dnevna soba 12.96 m2
6 Ostava 1.32 m2
7 Dečija soba 5.52 m2
8 Spavaća soba 10.15 m2
9 Terasa 4.99 m2

  • Cena siva faza: 320 - 440€
  • Cena ključ u ruke: 530 - 680€
  • Adresa: Boška Petrovića 2a, Ivanjica
ZATRAŽITE PONUDU ILI ZAKAŽITE SASTANAK

    Siva faza:
    320 - 440€
    Ključ u ruke:
    530 - 680€