BRUTO POVRŠINA

32m²

BROJ ETAŽA

1

BROJ SPAVAĆIH SOBA

2

ROK IZRADE

30 dana

MONTAŽNA BOX KUĆA 05

Opis montažne box kuće 05

Uređen dizajn ove montažne box kuće od 32 m2 je idealan za bilo koje mesto, naročito za prirodna okruženja ali i za baštu. Moderan izgled fasade doprinosi eleganciji zato što je jednostavan. Krov je skoro ravan s blagim nagibom i prekriven limenim trapeznim pokrivačem. Ispod lima je 20 cm mineralne vune kao toplotni izolatora. Zidovi sadrže 10 cm kamene vune i 10 cm stiropora. Fasada se oblaže kombinovano sibirskim arišom i ravna glet masom. Obloga za trem je deking ili po izboru klijenta keramika i slično. Stolarija je u boji drveta, šestokomorna sa niskoemisionim staklima.

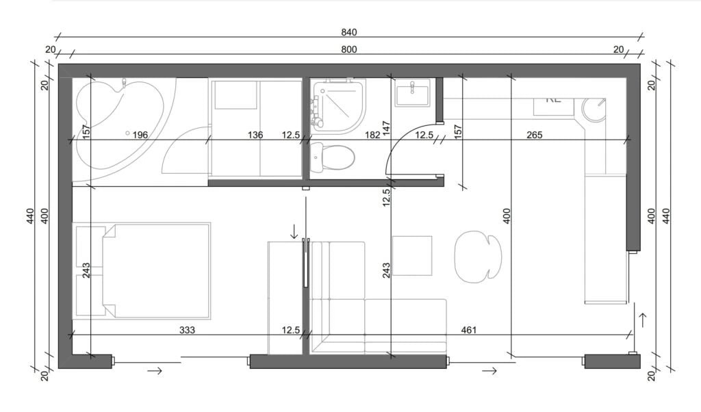
Enterijer montažne box kuće

Kao i kod svih kućica akcenat je stavljen na funkcionalnost enterijera. Montažna kuća sadrži spavaću sobu, dnevnu sobu sa kuhinjom i kupatilom. Kupatilo je popločano kvalitetnom granitnom keramikom dimenzija 60×60 cm i 120×60 cm. Zidovi se oblažu gipskarton pločama po principima i standardima suve gradnje. Minimalizam ovih projektnih ideja jeste vrsta komfora za svaki džep. Pod je popločan laminatom, brodskim podom ili keramikom. Spavaća soba je napravljena i osmišljena kao posebna hedonistička oaza s đakuzijem i mini saunom, što je zapravo izvanredan izbor za odmor i relaksaciju. Minimalizam ovih projektnih ideja jeste vrsta komfor za svaki džep i standardizacija modernog dizajna i spajanja sa prirodom i okružnjem.

Cena i rokovi izgradnje

Ova montažna box kuća se radi po sistemu ključ u ruke. Investitor odnosno naručilac radova je dužan da uradi temelj. Da dovede priključke struje, vode i kanalizacije do kuće. Temelj ne ulazi u cenu ali na zahtev bi mogli da ga uradimo uz doplatu. Faktori koji utiču na cenu su nagib terena tip zemljišta itd. Sanitariju i kupatilski nameštaj kupuje naručilac radova a montaža i ugradnja su uračunati u cenu.

Rok za izvodjenje radova bez temelja za ovaj model je 30 dana.

  • Cena siva faza: Pošaljite Upit
  • Cena ključ u ruke: Pošaljite Upit
  • Adresa: Srbijanska 12, Pančevo
ZATRAŽITE PONUDU ILI ZAKAŽITE SASTANAK

    Siva faza:
    Pošaljite Upit
    Ključ u ruke:
    Pošaljite Upit