BRUTO POVRŠINA

44m²

BROJ ETAŽA

1

BROJ SPAVAĆIH SOBA

2

ROK IZRADE

35 dana

MONTAŽNA BOX KUĆA 07

Opis montažne box kuće 07

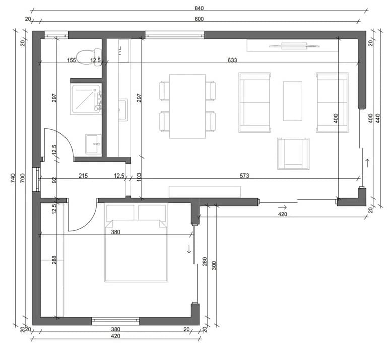
Montažna box kuća u obliku slova „L“ 44 m2. Prednosti oblika L gradjevine osim što spaja unutrašnje i spoljašnje okruženje daje veći osećaj privatnosti. Prednji deo kuće je obložen sibirskim arišom koji u kombinaciji sa stolarijom antracit boje ostavlja utisak elegancije i topline. Velika balkonska vrata pružaju efekat bolje osvetljenosti unutrašnjosti montažne kuće ali i spajanje enterijera i eksterijera sa prirodom u okruženju. Zadnji deo kuće je obložen demit fasadom ili je gletovan. Ima 20 cm izolacije što smanjuje potrošnju energije. Krov je ravan i oblaže se limenim pokrivačem ispod kojeg je montirana mineralna vuna 20 cm.

Enterijer montažne box kuće

Unutrašnjost kuće se sastoji iz dva odvojena box dela koja su povezana u obliku slova L . U jednom delu je spavaća soba a u drugom su kupatilo i jedna celina koju čine kuhinja sa trepezarijom i dnevnom sobom. Jednostavan dizajn sa malo dekorativnih detalja čini prostor elegantnim i dinamičnim. Zidovi su beli i ne savetuje se krečenje tamnim bojama. Obloženi su gips karton pločama 12,5 mm. Podnu oblogu čini brodski pod i keramika. Keramika je granitna, veličina 120×60 i 60×60. Trem skladno pristaje između dva zida dnevne i spavaće sobe tako da daje osećaj privatnosti kao da ste u svom vrtu ali ste i deo okruženja. Trem je obložen granitnom keramikom.

Cena i rokovi izgradnje

Ova montažna box kuća se radi po sistemu ključ u ruke. Investitor odnosno naručilac radova je dužan da uradi temelj. Da dovede priključke struje, vode i kanalizacije do kuće. Temelj ne ulazi u cenu ali na zahtev bi mogli da ga uradimo uz doplatu. Faktori koji utiču na cenu su nagib terena tip zemljišta itd. Sanitariju i kupatilski nameštaj kupuje naručilac radova a montaža i ugradnja su uračunati u cenu.

Rok za izvodjenje radova bez temelja za ovaj model je 35 dana.

  • Cena siva faza: Pošaljite Upit
  • Cena ključ u ruke: Pošaljite Upit
  • Adresa: Srbijanska 12, Pančevo
ZATRAŽITE PONUDU ILI ZAKAŽITE SASTANAK

    Siva faza:
    Pošaljite Upit
    Ključ u ruke:
    Pošaljite Upit