40m²
2
2
30 dana
Prednja strana A-Frame 01 kuće
Montažna A-frame kuća je idealna za planinske predele sa više snežnih padavina. Zbog oštrog oblika, velike količine snega se teže zadržavaju na krovu. Stolarija je PVC, antracit, šestokomorna sa čeličnim ojačanjem. PVC je u standardnoj ponuda ali se uz doplatu (razlika cene zavisi od tržišta) može ugraditi i aluminijumska stolarija. Prednja strana kuće je cela u bojenom (parsol) staklu.
Krov i fasada kuće
Krov montažne Kuće se oblaže limenim pokrivačem trapeznog oblika ili u obliku crepa. Ispod limenog pokrivače se montira 10 cm kamene vune što daje izuzetnu termoizolaciju. A-frame montažna kuća se izradjuje sa duplom krovnom konstrukcijom. Zahvaljujući ovakvom načinu gradnje, montažna kuća ima dobru termoizolaciju a unutrašnjost je ostala obložena drvetom. Zid je ispunjen takođe kamenom vunom 10 cm debljine koji je obostrano obložen OSB pločama. Kao fasadnu oblogu koristimo borovinu i sibirski ariš.
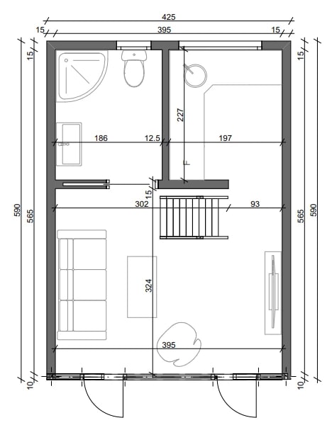
Enterijer kuće
Unutrašnjost kuće je obložena drvetom (sibirski ariš i beli bor). Našim klijentima ostavljamo mogućnost da izaberu izmedju nekoliko različitih modela lamperije ili drugih drvenih obloga. Podna obloga u prizemlju može da bude od belog bora ili obložena granitnom keramikom. U kupatilu se ugradjuje granitna keramika velikog formata 120×60 i 60×60. Veliki prozori i vrata omogućavaju dobru osvetljenost prostora što stvara osećaj jedinstva sa prirodom i okolinom. Pažljivo isplaniran svaki santimetar će omogućiti povećan užitak i komfor.
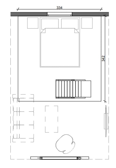
Enterijer etaže
Gornja etaža se sastoji od spavaće sobe i galerije koja čini celinu sa prizemljem. Iznad zaglavlja kreveta se nalazi veliki prozor koji obuhvata celu površinu zida. Druga mogućnost je da soba bude pregradjena zidom i bude potpuno izolovana od ostatka kuće. Takođe, sprat umesto galerije i spavaće sobe, može da ima dve spavaće sobe ali time gubimo galeriju. Svaka promena plana na lični zahtev se dodatno naplaćuje.