55m²
2
2
55 dana
Prednja strana A-Frame 02 kuće
A-frame brvnara, je dobar izbor za podneblja se velikim snežnim padavinama, zbog krova koji ima veliki nagib, usled čega se sneg teže zadržava. Zidnu konstrukciju čine drvene grede izmedju kojih je kamena vuna kao toplotni izolator a fasada je obložena drvenim oblicama. Iz tog razloga ova montažna kuća podseća na brvnaru i ako zapravo to nije ali zato ima mnogo bolje karakteristike od klasične brvnare. Prednjom stranom kuće dominiraju veliki otvori koji omogućavaju mnogo svetla.
Krov i stolarije kuće
Stolarija je PVC, šestokomorna sa čeličnim ojačanjem u boji drveta ili antracit sa parsol (blago obojenim) staklima. Krov se oblaže limenim pokrivačem trapeznog oblika ili u obliku crepa. Ispod limenog pokrivača se montira 10 cm kamene vune što daje izuzetnu termoizolaciju.
Enterijer – Unutrašnjost montažne kuće
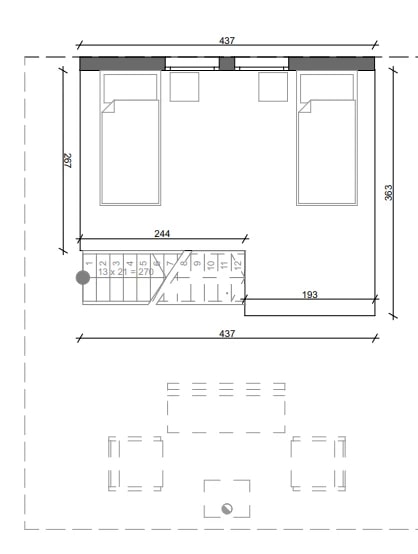
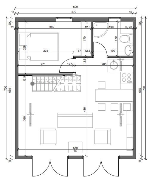
A-frame brvnara je u potpunosti obložena drvetom. Ova montažna kuća ima veliki dnevi boravak koji je spojen sa kuhinjom, malo kupatilo i spavaću sobu. Dnevni boravak čini celinu sa galerijom koja prati oblik krova.
Opis enterijera sprata
Gornja etaža se sastoji od spavaće sobe i galerije, koja čini celinu sa prizemljem. U zavisnosti od želje kupca, sprat može da ima dve spavaće sobe ali se time gubi galerija.
Cene i rokovi izrade montažne kuće A-Frame 02
Ova montažna box kuća se radi po sistemu ključ u ruke. Investitor odnosno naručilac radova je u obavezi da uradi temelj i dovede priključke struje, vode i kanalizacije do kuće. Temelj ne ulazi u cenu ali na zahtev bi mogli da ga uradimo uz doplatu. Cenu izrade temelja i ploče diktira nagib terena tip zemljišta i drugi faktori. Sanitariju i kupatilski nameštaj kupuje naručilac radova a montaža i ugradnja su uračunati u cenu. Rok za izvodjenje radova bez temelja za ovaj model je 45 dana.