BRUTO POVRŠINA

80m²

BROJ ETAŽA

2

BROJ SPAVAĆIH SOBA

2

ROK IZRADE

60 dana

A-FRAME 03

Prednja strana A-Frame 03 kuće

A-frame montažna kuća, kombinovana sa box dizajnom. Zbog oštrog oblika, velike količine snega se teže zadržavaju na krovu a ravan dodatak je osmišljen kao kutak sa velikom terasom koji nas spaja sa okolinom. Prednjom stranom dominiraju velika balkonska vrata i prozori. Stolarija je PVC antracit sa parsol staklima. Terasa je popločana granitnom keramikom i ogradjena staklenom ogradom.

Krov i fasada kuće

Krov A-frame montažne box kuće se oblaže limenim trapeznim pokrivačem ispod kojeg se montira 10 cm kamene vune što daje izuzetnu termoizolaciju. Zidovi imaju 10 cm kamene vune i 10 cm stiropora. Kao fasadnu oblogu koristimo borovinu i sibirski ariš. Box dodatak se zida Ytongom i oblaže stiroporom.

Enterijer kuće

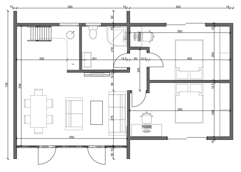
Enterijer A-frame montažne box kuće je obložena kombinovano drvenom oblogom i molerskim radovima. Drvenu oblogu čine beli bor i sibirski ariš. U ponudi imamo daske u nekoliko različitih dimenzija. Prizemlje se sastoji od velikog dnevnog boravka sa kuhinjom i trpezarijom, kupatilom i dve spavaće sobe. Plafon u A-frame čini drvena konstrukcija. Keramika u kupatilu je granitna, velikog formata 60×60 i 120×60.

Enterijer i eksterijer sprata

Sprat montažne kuće se sastoji od spavaćeg dela i prostrane terase. Terasa je popločana granitnom keramikom velikog formata i ogradjena staklenom ogradom. Postoji mogućnost instaliranja većeg djakuzija što je prikazano na slici idejnog rešenja.

Cene i rokovi izrade montažne kuće

Ova montažma box kuća se radi po sistemu ključ u ruke. Investitor odnosno naručilac radova je dužan da uradi temelj. Da dovede priključke struje, vode i kanalizacije do kuće. Temelj ne ulazi u cenu ali na zahtev bi mogli da ga uradimo uz doplatu. Faktori koji utiču na cenu su nagib terena tip zemljišta itd. Sanitariju i kupatilski nameštaj kupuje naručilac radova a montaža i ugradnja su uračunati u cenu.

Rok za izvodjenje radova bez temelja za ovaj model je 45 dana.

  • Cena siva faza: Pošaljite Upit
  • Cena ključ u ruke: Pošaljite Upit
  • Adresa: Srbijanska 12, Pančevo
ZATRAŽITE PONUDU ILI ZAKAŽITE SASTANAK

    Siva faza:
    Pošaljite Upit
    Ključ u ruke:
    Pošaljite Upit