80m²
2
2
40 dana
Prelepa mala jednostavna kuća 80 m2. Idealna je za planinsko okruženje ali i kao vikendica pored jezera. Pogodna je za porodice ali idealna i za druženja.
A frame oblik se odlikuje krovnom konstrukcijom u obliku trougla, time su linije krova oštre što sprečava veće količine snežnih padavina da se zadržavaju. Stolarija je PVC, antracit, šestokomorna sa čeličnim ojačanjem. PVC je u standardnoj ponudi ali se uz doplatu (razlika cene zavisi od tržišta) može ugraditi i aluminijumska stolarija. Prednja strana kuće je manje više cela u bojenoj četvorosezonskoj stolariji.
Krovna konstrukcija i termoizolacija
Dupla krovna konstrukcija se oblaže završno limenim pokrivačem trapeznog oblika ili u obliku crepa. Ispod limenog pokrivače se montira 10 cm kamene vune što daje izuzetnu termoizolaciju. Zahvaljujući ovakvom načinu gradnje, montažna kuća ima dobru termoizolaciju a unutrašnjost je ostala obložena drvetom. Zid je ispunjen takođe kamenom vunom 10 cm debljine koji je obostrano obložen OSB pločama. Kao fasadnu oblogu koristimo borovinu i sibirski ariš ili kedrovinu.
Dnevni boravak – Prednji zid u staklu
Svetla, udobna unutrašnjost montažne A frame kuće je spoj modernog i lepog. Funkcionalna povezanost kuhinje, trpezarije, dnevne sobe i terase daje osećaj povezanosti između ljudi. Prednji zid kuće je skoro ceo u staklenoj površini koju čine balkonska vrata i prozori, čime dobijamo pun efekat osvetljenja i povezujemo se s okruženjem. Prozori i vrata su takvi da zadržavaju temperaturu u kući bez obzira na spoljne uslove.
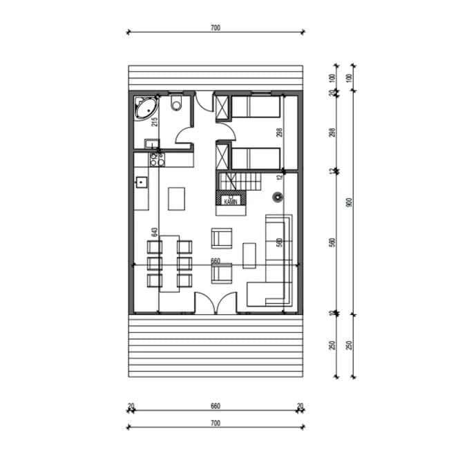
Kamin je sastavni deo dnevnog boravka može biti ugradni ili električni. Nalazi se u sklopu dnevnog boravka i iza njega su postavljenen stepenice koje vode ka galeriji. Blizu prozora je i trpezarijski sto s malom priručnom kuhinjom. Iza kuhinje je dvokrevetna soba s prozorom. Iza stepeništa je kupatilo s malim prozorom. Ima kadu, lavabo i wc šolju.
Enterijer montažne kuće u drvetu
Unutrašnjost kuće je obložena drvetom (sibirski ariš, beli bor, sibirski kedar). Grede krovne konstrukcije su vidljive zahvaljujući duploj krovnoj konstrukciji. Ovaj je efekat zadužen za osećaj topline doma a i lepo izgleda. Našim klijentima ostavljamo mogućnost da izaberu izmedju nekoliko različitih modela lamperije ili drugih drvenih obloga. Podna obloga u prizemlju može da bude od belog bora, brodski pod ili obložena granitnom keramikom. U kupatilu se ugradjuje granitna keramika velikog formata 120×60 i 60×60. Veliki prozori i vrata omogućavaju dobru osvetljenost prostora što stvara osećaj jedinstva sa prirodom i okolinom. Pažljivo isplaniran svaki santimetar daje funkcionalnost prostoru. Kuhinja, kamin i nameštaj ne ulaze u cenu. Nameštaj je vaš izbor a sanitarije i pločice po vašem izboru ugrađujemo mi u sklopu cene.
Enterijer gornje etaže
Gornja etaža se sastoji od spavaće sobe i galerije koja čini celinu sa prizemljem. Na galeriji se nalazi veliki prozor koji obuhvata deo površine zida. Galeriju možemo koristiti kao spavaću sobu i izvrsno kao kancelarijski prostor s pogledom na lođu.
Cene i rokovi izrade montažne kuće
Ova montažna box kuća se radi po sistemu ključ u ruke. Investitor odnosno naručilac radova je u obavezi da uradi temelj i dovede priključke struje, vode i kanalizacije do kuće. Temelj ne ulazi u cenu ali na zahtev bi mogli da ga uradimo uz doplatu. Cenu izrade temelja i ploče diktira nagib terena tip zemljišta i drugi faktori. Sanitariju i kupatilski nameštaj kupuje naručilac radova a montaža i ugradnja su uračunati u cenu. Rok za izvodjenje radova bez temelja za ovaj model je 40 dana. Cena je 48 000 e s pdv-om.