BRUTO POVRŠINA

85m²

BROJ ETAŽA

2

BROJ SPAVAĆIH SOBA

2

ROK IZRADE

40 dana

A-FRAME 05

Eksterijer montažne A-frame kuće

Mala savršeno upakovana kuća je idealna za boravak u prirodi. Prednja strana kuće je sva u staklu što je čini naročito lepom i doprinosi osvetljenju. Modernog je i prijatnog izgleda ima 85 m2. Krovna konstrukcija je oštra pa sprečava veće količine snežnih padavina da se zadržavaju. Time je idealna za planinske predele gde je procenat snega zastupljeniji. Stolarija je PVC, antracit, šestokomorna sa čeličnim ojačanjem. PVC je u standardnoj ponudi ali se uz doplatu (razlika cene zavisi od tržišta) može ugraditi i aluminijumska stolarija. Prednja strana kuće je manje više cela u bojenoj četvorosezonskoj stolariji.

Montažna kuća – zadnja strana

Specifičnost u gradnji je dupla krovna konstrukcija se oblaže završno limenim pokrivačem trapeznog oblika ili u obliku crepa. Značaj ovakve konstrukcije je u stabilnosti i estetskoj noti jer nam omogućava da drvene grede budu vidljive. Boje lima su bela ili crna. Ispod limenog pokrivače se montira 10 cm kamene vune što daje izuzetnu termoizolaciju. Zahvaljujući ovakvom načinu gradnje, montažna kuća ima dobru termoizolaciju a unutrašnjost je ostala obložena drvetom. Zid je ispunjen takođe kamenom vunom 10 cm debljine koji je obostrano obložen OSB pločama. Kao fasadnu oblogu koristimo borovinu i sibirski ariš ili kedrovinu.

Enterijer – moderan i funkcionalan

Minimalizam na delu, usklađen s modernošću i funkcionalnošću predstavlja prestiž u današnjoj gradnji. Poželjno je da organizacija prostora unutar kuće bude u obliku jedne celine. Funkcionalna povezanost kuhinje, trpezarije, dnevne sobe i terase daje osećaj povezanosti između ljudi. Prednji zid kuće je skoro ceo u staklenoj površini koju čine balkonska vrata i prozori. Ovakav projekat daje mnogo svetlosti i pruža osećaj jedinstva s prirodom. Kamin je sastavni deo dnevnog boravka može biti ugradni ili električni. Nalazi se u sklopu dnevnog boravka i iza njega su postavljenen stepenice koje vode ka galeriji. Blizu prozora je planiran i trpezarijski sto s malom priručnom kuhinjom. Pozadi se nalaze kupatilo s kadom, wc šoljom i lavaboom. Iza stepeništa je mala dvokreventna soba koja ima prozor. Može biti organizovana kao dečija soba ili gostinska.

Unutrašnjost kuće je obložena najkvalitenijim drvetom (sibirski ariš, beli bor). Grede krovne konstrukcije su vidljive što diprinosi rustičnosti objekta. Našim klijentima ostavljamo mogućnost da izaberu izmedju nekoliko različitih modela lamperije ili drugih drvenih obloga. Podna obloga u prizemlju može da bude od belog bora, brodski pod ili obložena granitnom keramikom. Granitna keramika velikog formata 120×60 i 60×6 se ugrađuje u kupatilu i vrlo je elegantan izbor i moderan. Veliki prozori i vrata omogućavaju dobru osvetljenost prostora što stvara osećaj jedinstva sa prirodom i okolinom.Takođe su savršen estetski detalj koji doprinosi ideji minimalističke gradnje. Pažljivo isplaniran svaki santimetar će omogućiti povećan užitak i komfor za one koji borave u kući. Kuhinja, kamin i nameštaj ne ulaze u cenu. Nameštaj je vaš izbor a sanitarije i pločice po vašem izboru ugrađujemo mi u sklopu cene.

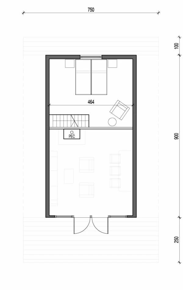
Enterijer etaže

Potreba za galerijom je savršen estetski detalj. Možete se popeti i uživati u pogledu na dnevnu sobu ali i u predivnom pogledu kroz staklarnik. Gornja etaža se sastoji od spavaće sobe i galerije koja čini celinu sa prizemljem. Na galeriji se nalazi veliki prozor koji obuhvata deo površine zida. Galeriju možemo koristiti kao spavaću sobu i izvrsno kao kancelarijski prostor s pogledom na lođu.

Cene i rokovi izrade montažne kuće

Ova montažna box kuća se radi po sistemu ključ u ruke. Investitor odnosno naručilac radova je u obavezi da uradi temelj i dovede priključke struje, vode i kanalizacije do kuće. Temelj ne ulazi u cenu ali na zahtev bi mogli da ga uradimo uz doplatu. Cenu izrade temelja i ploče diktira nagib terena tip zemljišta i drugi faktori. Sanitariju i kupatilski nameštaj kupuje naručilac radova a montaža i ugradnja su uračunati u cenu.

Rok za izvodjenje radova bez temelja za ovaj model je 40 dana.

Cena: 52 000 e s pdv-om.

  • Cena siva faza: Pošaljite Upit
  • Cena ključ u ruke: Pošaljite Upit
  • Adresa: Srbijanska 12, Pančevo
ZATRAŽITE PONUDU ILI ZAKAŽITE SASTANAK

    Siva faza:
    Pošaljite Upit
    Ključ u ruke:
    Pošaljite Upit