BRUTO POVRŠINA

100m²

BROJ ETAŽA

2

BROJ SPAVAĆIH SOBA

2

ROK IZRADE

40 dana

A-FRAME 06

Ušuškana mala kuća 100 m2 je moderan spoj funkcionalnog i skromnog. Prednji zid koji je sav u staklu je prelep estetski detalj. Krov zatvara kućicu u obliku trougla od plafona do poda. Oštar oblik krovne konstrukcije, sprečava velike količine snega da se zadržavaju. Iz ovih premisa kuća je pogodna za planinske uslove. Stolarija je PVC, antracit, šestokomorna sa čeličnim ojačanjem. PVC je u standardnoj ponudi ali se uz doplatu (razlika cene zavisi od tržišta) može ugraditi i aluminijumska stolarija. Prednja strana kuće je manje više cela u bojenoj četvorosezonskoj stolariji. Vidimo da je stolarija izrađena iz više celina da ne obuhvata ceo zid ali pruža vitražni efekat i lepo izgleda. Slične staklene površine bile su izražene u gradnji viktorijanskog stila, tako da kuće na neki način svojim izgledom po malo deluju kao da nas vraćaju kroz vreme samo u minijaturnoj formi.

Limeni krov montažne kuće

Krov montažne kuće se oblaže limenim pokrivačem trapeznog oblika ili u obliku crepa, bele ili crne boje. Ispod limenog pokrivače se montira 10 cm kamene vune što daje izuzetnu termoizolaciju. A-frame montažna kuća se izradjuje sa duplom krovnom konstrukcijom.

Kamena vuna i OSB ploče

Zahvaljujući ovakvom načinu gradnje, montažna kuća ima dobru termoizolaciju a unutrašnjost je ostala obložena drvetom, što joj daje fantastičan estetski dojam. Zid je ispunjen takođe kamenom vunom 10 cm debljine koji je obostrano obložen OSB pločama. Kao fasadnu oblogu koristimo borovinu i sibirski ariš ili kedrovinu jer su najkvalitetnije drvo.

Enterijer A-frame montažne kuće

Dobro je da prostor unutar kuće bude što više u obliku jedne celine. Funkcionalna povezanost kuhinje, trpezarije, dnevne sobe i terase je presudna u minimalističkoj gradnji jer otvara prostor ka prirodi i za druženje. Ovakav sklop daje osećaj povezanosti između ljudi koji borave tu i prirodnog okruženja, stvarajući sinergiju između prirode, ljudi i njihovog odmorišta. Kamin je sastavni deo dnevnog boravka pa se uz njega zimi može uživati u pogledu snežnih padavina kroz prostrano staklenu površinu. Kamin se može dekorisati ukrasnim kamenom, nalazi se na sredini prostorije tako da pruža i mogućnost dobrog grejanja i omogućava da mu budete blizu i iz dnevne sobe i iz kuhinje i uživate u pogledu na vatru. Kamin je značajan estetski detalj. Takođe i platforma je deo zajedničkog okruženja i možete je pretvoriti u radnu ili spavaću sobu. Ovakve vrste prostora napravljene su i pogodne za druženje.

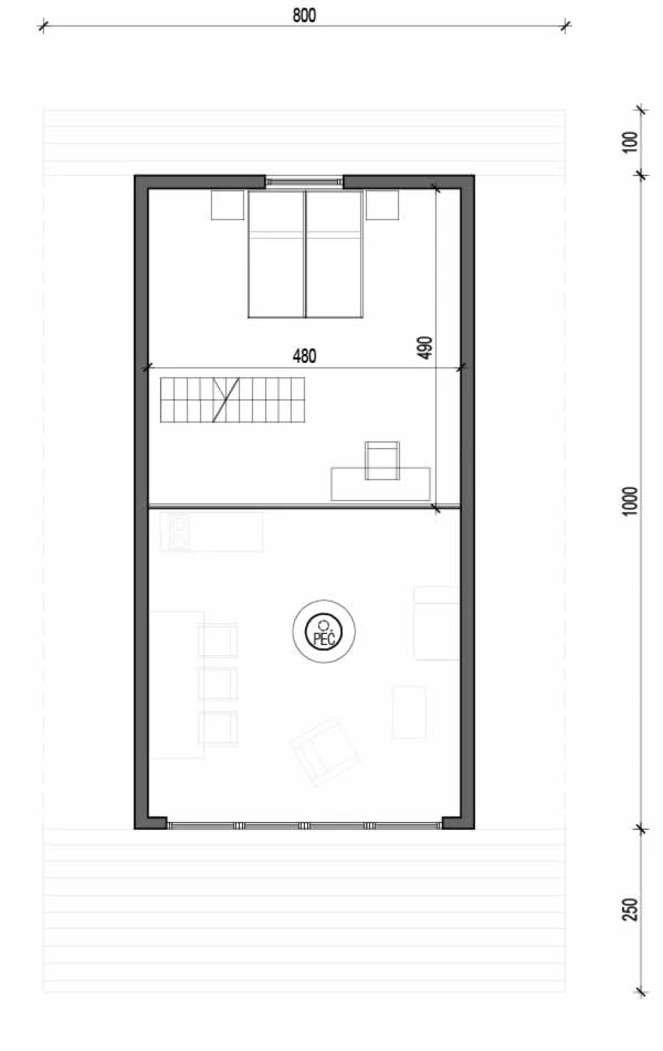
Raspored prostorija je osmišljen tako što su dnevni boravak i trpezarija raspoređeni bliže prozorskom oknu a kuhinja se nalazi pored trpezarije kao mali i funkcionalni detalj. Stepenište je postavljeno između kuhinjaskog zida i spavaće sobe. Kupatilo se nalazi između dnevnog boravka i sobe. Ima kadu, wc šolju i lavabo i vrlo je funkcionalno. Dve sobe su u prizemlju, imaju po jedan prozor i mogu biti dvokrevetne. Namena im može biti i drugačija.

Unutrašnjost kuće je obložena najkvalitetnijim drvetom (sibirski ariš i beli bor). Grede krovne konstrukcije su vidljive jer se radi dupla krovna konstrukcija. Vidljivost greda unosi estravaganciju u vaš mali dom. Našim klijentima ostavljamo mogućnost da izaberu izmedju nekoliko različitih modela lamperije ili drugih drvenih obloga. Podna obloga u prizemlju može da bude od belog bora, brodski pod ili obložena granitnom keramikom. U kupatilu se ugradjuje granitna keramika velikog formata 120×60 i 60×60. Veliki prozori i vrata omogućavaju dobru osvetljenost prostora što stvara osećaj jedinstva sa prirodom i okolinom. Pažljivo isplaniran svaki santimimetar će omogućiti povećan užitak i komfor. Kuhinja, kamin i nameštaj, ne ulaze u cenu. Nameštaj je vaš izbor a sanitarije i pločice po vašem izboru ugrađujemo mi u sklopu cene.

Enterijer sprata kuće

Prelep je osećaj kada se popnete na galeriju i pogledate dole na dnevnu sobu ili se kroz staklarnik spojite pogledom s okruženjem.Gornja etaža se sastoji od spavaće sobe i galerije koja čini celinu sa prizemljem. Na galeriji se nalazi veliki prozor koji obuhvata deo površine zida. Galeriju možemo koristiti kao spavaću sobu i izvrsno kao kancelarijski prostor s pogledom na lođu.

Cene i rokovi izrade montažne kuće

Ova montažna box kuća se radi po sistemu ključ u ruke. Investitor odnosno naručilac radova je u obavezi da uradi temelj i dovede priključke struje, vode i kanalizacije do kuće. Temelj ne ulazi u cenu ali na zahtev bi mogli da ga uradimo uz doplatu. Cenu izrade temelja i ploče diktira nagib terena tip zemljišta i drugi faktori. Sanitariju i kupatilski nameštaj kupuje naručilac radova a montaža i ugradnja su uračunati u cenu.

Rok za izvodjenje radova bez temelja za ovaj model je 40 dana.

Cena: 60 000 e s pdv-om.

  • Cena siva faza: Pošaljite Upit
  • Cena ključ u ruke: Pošaljite Upit
  • Adresa: Srbijanska 12, Pančevo
ZATRAŽITE PONUDU ILI ZAKAŽITE SASTANAK

    Siva faza:
    Pošaljite Upit
    Ključ u ruke:
    Pošaljite Upit