117.26m²
1
3/4
| br. | Prostorija | Površina |
|---|---|---|
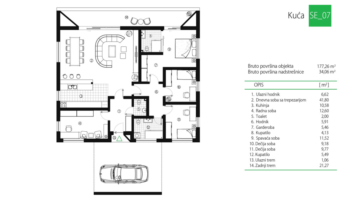
| 1. | Ulazni hodnik | 6.62 |
| 2. | Dnevna soba sa trepezarijom | 41.80 |
| 3. | Kuhinja | 10.58 |
| 4. | Radna soba | 12.60 |
| 5. | Toalet | 2 |
| 6. | Hodnik | 5.91 |
| 7. | Garderoba | 5.46 |
| 8. | Kupatilo | 4.13 |
| 9. | Spavaća soba | 11.52 |
| 10. | Dečija soba | 9.18 |
| 11. | Dečija soba | 9.77 |
| 12. | Kupatilo | 5.49 |
| 13. | Ulazni trem | 1.06 |
| 14. | Zadnji trem | 21.27 |
| 147.39 m² | ||
Vrhunski dizajn eksterijera kuće, sa inovativnim rešenjima u prostoru ulaza i dvorišnog trema, kao i u elegantnom rešenju nadstrešnice sa funkcijom otvorene garaže. Ekskluzivna kuća SE_07 u svakom svom detalju prostorne organizacije enterijera ima detaljno razrađenu funkciju i estetiku, posebno u kupatilima i kuhinji. Deo fasade je prekriven drvenom oblogom vrhunske zaštite od UV zraka i sa dodatnom toplotnom izolacijom.
Kosi zidovi na ulaznom i dvorišnom tremu naglašavaju sklad linija i unikatan dizajn. Materijali i oprema koji su korišćeni za izradu ove kuće su vrhunski, bez izuzetaka, a u cenu je uračunato i eksterno uređenje ulaznog i dvorišnog trema sa osvetljenjem.
Bruto površina kuće SE_07 je 211,32 m2 sa nadstrešnicom, ulaznim i dvorišnim tremom. Dimenzije kuće su 18,16 m x 13,72 m.
Izgradnja kuće se izvodi sistemom „ključ u ruke“, bez izgradnje temelja. Za više informacija, kontaktirajte nas!
Za ovaj model kuće postoji mogućnost izmene vrste materijala i nivoa opremljenosti, po posebnim zahtevima kupca.
DIZAJNERSKO REŠENJE EKSTERIJERA KUĆE JE AUTORSKI ZAŠTIĆEN PROIZVOD FIRME greenSMARTHAUS doo Niš