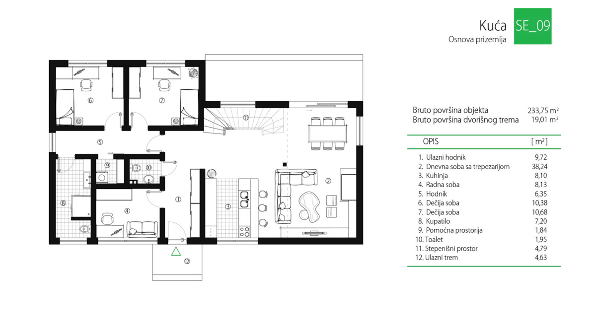
233.75m²
2
4/5
| br. | Prostorija | Površina |
|---|---|---|
| 1. | Ulazni hodnik | 9.72 |
| 2. | Dnevna soba sa trepezarijom | 38.24 |
| 3. | Kuhinja | 8.10 |
| 4. | Radna soba | 8.13 |
| 5. | Hodnik | 6.35 |
| 6. | Dečija soba | 10.38 |
| 7. | Dečija soba | 10.68 |
| 8. | Kupatilo | 7.20 |
| 9. | Pomoćna prostorija | 1.84 |
| 10. | Toalet | 1.95 |
| 11. | Stepenišni prostor | 4.79 |
| 12. | Ulazni trem | 4.63 |
| 13. | Hodnik - sprat | 10.65 |
| 14. | Spavaća soba - sprat | 23 |
| 15. | Kupatilo | 5.56 |
| 16. | Kupatilo | 5.24 |
| 17. | Gostinjska soba | 9.13 |
| 18. | Galerija | 23.13 |
| 188.72 m² | ||
Po uzoru na skandinavske porodične kuće, pred Vama je visokokvalitetna kuća sa prednjom i zadnjom fasadom od drvene obloge. Posebnom selekcijom materijala i opreme, ova kuća nudi mnogo u kvalitetu i raznovrsnosti podova, keramike, sanitarije i vrhunske drvene stolarije. Praktičnim rasporedom soba – prostorna dnevna soba u prizemlju sa galerijom i spavaće sobe na spratu – postiže se konfor i funkcionalnost.
Materijali i oprema koji su korišćeni za izradu ove kuće su prirodni i vrhunski, bez izuzetaka. Bruto površina kuće SE_09 je 233,75 m2 i dodatno 19,01 m2 pod ulaznim i dvorišnim tremom. Optimalna površina placa je 5,0 ara, a minimalna 3,2 ara. Dimenzija kuće je 11,47 m x 15,89 m.
U dnevnoj sobi je zidani kamin sa dimnjakom koji celoj kući daje originalni pečat. Izgradnja kuće se izvodi sistemom „ključ u ruke“. Za više informacija, kontaktirajte nas!
Za ovaj model kuće postoji mogućnost izmene vrste materijala i nivoa opremljenosti, po posebnim zahtevima kupca.
DIZAJNERSKO REŠENJE EKSTERIJERA KUĆE JE AUTORSKI ZAŠTIĆEN PROIZVOD FIRME greenSMARTHAUS doo Niš