BRUTO POVRŠINA

218.58m²

BROJ ETAŽA

2

BROJ SPAVAĆIH SOBA

3

ROK IZRADE

Ekskluzivna kuća SE_11

br. Prostorija Površina
1.Ulazni hodnik12.51
2.Dnevna soba20.42
3.Trepezarija11.72
4.Kuhinja9.13
5.Toalet3.30
6.Pomoćna prostorija3.84
7.Stepenišni prostor8.26
8.Garaža20.52
9.Ostava6.48
10.Dvorišni trem4.89
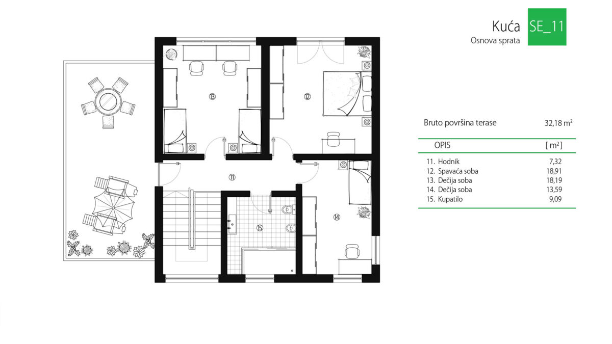
11.Hodnik - sprat7.32
12.Spavaća soba18.91
13.Dečija soba - sprat18.19
14.Dečija soba - sprat13.59
15.Kupatilo9.09
168.17 m²

Izuzetno funkcionalna kuća sa odličnim rasporedom prostorija, garažom, vešernicom i ostavom. Spavaći deo kuće smešten je na spratu zajedno sa velikom terasom i posebnim kupatilom. Uz izuzetno kvalitetne materijale fasade i enterijera – kombinacija drvenih obloga i glatke demit fasade – postignuta je vrhunska toplotna i zvučna izolacija sa prestižnom kombinacijom detalja i boja. U prizemnom delu je prostorna dnevna soba sa trpezarijom i kuhinjom i izlazom na dvorišni trem.

Materijali i oprema koji su korišćeni za izradu ove kuće su vrhunski, bez izuzetaka.
Bruto površina kuće SE_11 je 250,76 m2 sa dvorišnim tremom i dodatnim ulaznim tremom površine 6,84 m2. Optimalna površina placa je 5,0 ara, a minimalna 3,3 ara. Preporučljiva orijentacija kuće je sa ulazom na istoku!

Izgradnja kuće se izvodi sistemom „ključ u ruke“. Za više informacija, kontaktirajte nas!

Za ovaj model kuće postoji mogućnost izmene vrste materijala i nivoa opremljenosti, po posebnim zahtevima kupca.

DIZAJNERSKO REŠENJE EKSTERIJERA KUĆE JE AUTORSKI ZAŠTIĆEN PROIZVOD FIRME greenSMARTHAUS doo Niš

  • Cena siva faza: od 400€
  • Cena ključ u ruke: od 650€
  • Adresa: Koste Stamenkovića 6, Niš
ZATRAŽITE PONUDU ILI ZAKAŽITE SASTANAK

    Siva faza:
    od 400€
    Ključ u ruke:
    od 650€