BRUTO POVRŠINA

18m²

BROJ ETAŽA

1

BROJ SPAVAĆIH SOBA

1

ROK IZRADE

20 dana

MONTAŽNA BOX KUĆA 01

Opis montažne box kuće 01

Elegantnog je i prijatnog izgleda. Ova mala montažna box kuća ima površinu od 18 m2. Osmišljena je kao kuća ili vikendica malih dimenzija koja bi zadovoljila sve potrebe za odmor i uživanje. Izolaciju kuće čini kamena vuna 10 cm debljine i stiropor, takodje 10cm. Sa ukupno 20 cm izolacije ova mala kuća ima veliku energetsku efikasnost što doprinosi smanjenju potrošnje i rasipanja energije. Fasada je obložena kombinovano, demit ili gletovanom ravnom fasadom i drvenom oblogom. Za drvenu oblogu ove male montažne kuće koristimo sibirski ariš i imamo u ponudi fasadne daske u nekoliko dimenzija. Krov se oblaže limenim trapeznim pokrivačem. Ispod limenog pokrivača je mineralna vuna 20 cm debljine. Obloga za trem može biti deking ili keramika i ne ulazi u standardnu cenu kuće.

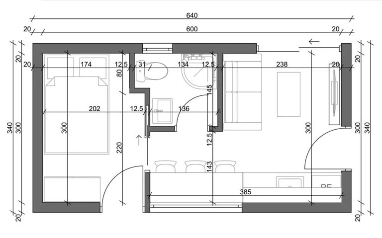
Enterijer montažne kuće

Unutrašnjost ove male montažne kuće je pažljivo isplanirana što doprinosi gubljenju osećaja koliko je ova kuća zapravo mala. Ova montažna box kuća ima zasebnu spavaću jedinicu i sve što je potrebno za normalan i ugodan boravak. Zidovi su obloženji gips karton pločama 12,5mm, obojeni u belo. Pregradni zidovi su sa pojačanom zvučnom izolacijom koji se rade po knaufovom sistemu. Keramika je granitna, velikog formata i u ponudi je nekoliko različitih modela, oblika i dizajna. Podnu oblogu čini drvena obloga (brodski pod) ili keramika u zavisnosti od želje kupca. Stolarija je PVC šestokomorna sa čeličnim ojačanjem. Stakla su niskoemisiona punjena argonom.

Cena i rokovi izgradnje

Ovakve male montažne kuće se rade po sistemu ključ u ruke. Za izradu ove montažne kuće, investitor odnosno naručilac radova je dužan da uradi temelj, dovede priključke struje, vode i kanalizacije do kuće. Dakle, temelj ne ulazi u cenu ali na zahtev bi mogli da ga uradimo uz doplatu. Cenu diktira nagib terena tip zemljišta i drugi faktori. Sanitariju i kupatilski nameštaj kupuje naručilac radova a montaža i ugradnja su uračunati u cenu.

Rok za izvodjenje radova bez temelja za ovaj model je 20 dana.

  • Cena siva faza: Pošaljite Upit
  • Cena ključ u ruke: Pošaljite Upit
  • Adresa: Srbijanska 12, Pančevo
ZATRAŽITE PONUDU ILI ZAKAŽITE SASTANAK

    Siva faza:
    Pošaljite Upit
    Ključ u ruke:
    Pošaljite Upit