18m²
1
1
20 dana
Opis montažne box kuće 02
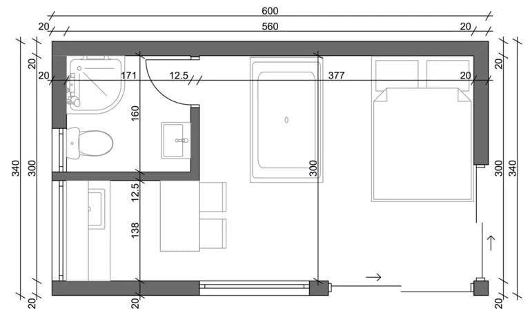
Moderna i prozračna, ova montažna box kuća ima površinu od 18 m2. Osmišljena je kao vikendica malih dimenzija namenjena za uživanje i odmor. Velika balkonska vrata i prozori doprinose utisku sjedinjenja sa spoljnim okruženjem. Izolaciju kuće čini kamena vuna 10 cm debljine i stiropor, takodje 10cm. Sa 20 cm izolacije ova mala kuća ima veliku energetsku efikasnost što doprinosi smanjenju potrošnje i rasipanja energije. Fasada je obložena kombinovano, demit ili gletovanom ravnom fasadom i drvenom oblogom. Za drvenu oblogu koristimo sibirski ariš, carska daska 20cm širine. Krov je ravan sa blagim nagibom i oblaže se limenim trapeznim pokrivačem. Ispod limenog pokrivača je mineralna vuna 20 cm debljine. Obloga za trem je deking i ne ulazi u standardnu cenu kuće.
Enterijer montažne box kuće
Unutrašnji prostor je jednostavno dizajniran kao spoj komfora, funkcionalnosti i hedonizma. Boravak u ovoj modernoj montažnoj kući podstiče osećaj da je ovaj mali prostor veći, zato što ima velike svetle otvore i nema pregradne zidove. Ova box kuća ima đakuzi u spavaćem delu i sve što je potrebno za ugodan boravak. Zidovi su obloženi gips karton pločama 12,5mm, obojeni u belo ili dekorisani po izboru naručioca radova. Podnu oblogu čini granitna keramika u zavisnosti od želje kupca. U ponudi su pločice velikog formata nekoliko različitih modela, oblika i dizajna, dimenzija 60×60 ili 120×60. Stolarija je PVC u boji drveta, šestokomorna sa čeličnim ojačanjem. Stakla su niskoemisiona punjena argonom.
Cena i rokovi izgradnje
Ova montažna box kuća se radi po sistemu ključ u ruke. Investitor odnosno naručilac radova je u obavezi da uradi temelj i dovede priključke struje, vode i kanalizacije do kuće. Temelj ne ulazi u cenu ali na zahtev bi mogli da ga uradimo uz doplatu. Cenu izrade temelja i ploče diktira nagib terena tip zemljišta i drugi faktori. Sanitariju i kupatilski nameštaj kupuje naručilac radova a montaža i ugradnja su uračunati u cenu. Rok za izvodjenje radova bez temelja za ovaj model je 20 dana.