BRUTO POVRŠINA

18m²

BROJ ETAŽA

1

BROJ SPAVAĆIH SOBA

1

ROK IZRADE

20 dana

MONTAŽNA BOX KUĆA 03

Opis montažne box kuće 03

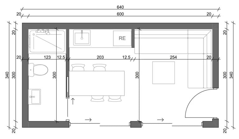
Montažna box kuća modernog izgleda i visoke energetske efikasnosti površine 18 m2. U potpunosti je obložena fasadnom daskom. Za drvenu oblogu ove kuće koristimo sibirski ariš. Zidovi imaju 20 cm izolacije, kombinovano 10 cm stiropora i 10 cm kamene vune. Ovakva izolacija doprinosi smanjenju rasipanja i potrošnje električne energije. Ima velika balkonska vrata i prozore. Krov je ravan sa blagim nagibom i oblaže se limenim pokrivačem ispod kojeg je smeštena mineralna vuna debljine 20 cm. Površina trema nije definisana i njegove dimenzije mogu da variraju u zavisnosti od potrebe kupca. Iz tog razloga trem i sve što je izvan gabarita kuće, ne ulazi u cenu.

Enterijer montažne box kuće

Enterijer je jednostavan i funkcionalan sa ravnim i jasnim linijama. Ova mala montažna kuća je pažljivo isplanirana i osmišljena da pruži kompletan komfor i ugodjaj. Zbog velikih dimenzija balkonskih otvora, dobijamo mnogo svetla što ovaj prostor čini većim. Kada se otvore sva vrata imamo perspektivu da smo se sjedinili sa okolinom, što je naročito lepo u prirodnom okruženju. PVC stolarija je bele boje, šestokomorna sa niskoemisionim staklima punjenim argonom. Zidna obloga je gips karton ploča 12,5 mm koja se farba u belo. Podna obloga je kombinovana drvena obloga i granitna keramika formata 60×60 i 120×60. Kupatilo je takodje obloženo granitnom keramikom velikog formata i u ponudi je nekoliko različitih modela i boja.

Cena i rokovi izgradnje

Ova montažna box kuća se radi po sistemu ključ u ruke. Investitor odnosno naručilac radova je dužan da uradi temelj. Da dovede priključke struje, vode i kanalizacije do kuće. Temelj ne ulazi u cenu ali na zahtev bi mogli da ga uradimo uz doplatu. Faktori koji utiču na cenu su nagib terena tip zemljišta itd. Sanitariju i kupatilski nameštaj kupuje naručilac radova a montaža i ugradnja su uračunati u cenu.

Rok za izvodjenje radova bez temelja za ovaj model je 20 dana.

  • Cena siva faza: Pošaljite Upit
  • Cena ključ u ruke: Pošaljite Upit
  • Adresa: Srbijanska 12, Pančevo
ZATRAŽITE PONUDU ILI ZAKAŽITE SASTANAK

    Siva faza:
    Pošaljite Upit
    Ključ u ruke:
    Pošaljite Upit