BRUTO POVRŠINA

133.86m²

BROJ ETAŽA

1

BROJ SPAVAĆIH SOBA

5

ROK IZRADE

TIP 117

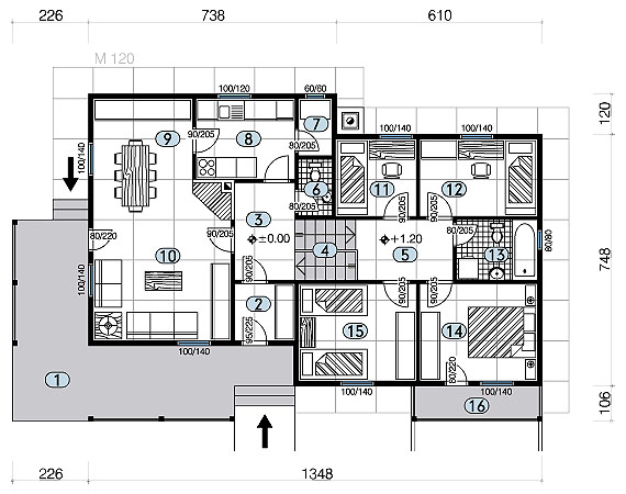
br. Prostorija Površina
1.Terasa27.31
2.Vetrobran3.06
3.Predsoblje5.22
4.Stepenište3.24
5.Galerija5.22
6.WC1.70
7.Ostava1.70
8.Kuhinja6.96
9.Trpezarija7.56
10.Dnevni boravak7.56
11.Dečija soba5.25
12.Dečija soba8.05
13.Kupatilo4.32
14.Spavaća soba10.15
15.Spavaća soba10.15
16.Balkon4.01
111.46 m²
  • Cena siva faza: od 400€
  • Cena ključ u ruke: od 650€
  • Adresa: Partizanska 50, Ivanjica
ZATRAŽITE PONUDU ILI ZAKAŽITE SASTANAK

    Siva faza:
    od 400€
    Ključ u ruke:
    od 650€