BRUTO POVRŠINA

50.51m²

BROJ ETAŽA

2

BROJ SPAVAĆIH SOBA

3

ROK IZRADE

TIP GOLIJA 30

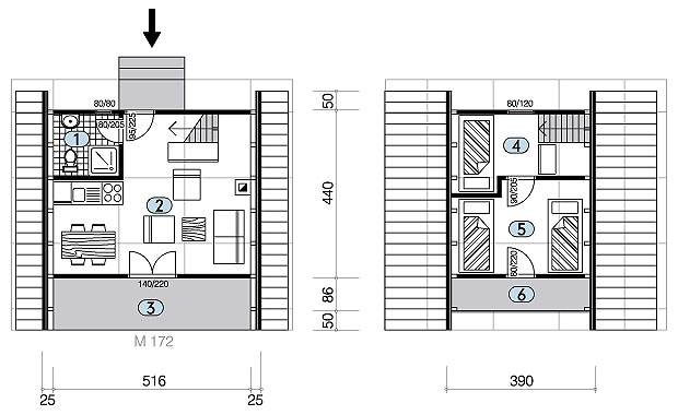
br. Prostorija Površina
1.Kupatilo2.95
2.Dnevni boravak18.53
3.Terasa7.01
4.Soba - sprat13.03
5.Spavaća soba - sprat9.67
6.Lođa - sprat3.47
54.66 m²
  • Cena siva faza: od 400€
  • Cena ključ u ruke: od 650€
  • Adresa: Partizanska 50, Ivanjica
ZATRAŽITE PONUDU ILI ZAKAŽITE SASTANAK

    Siva faza:
    od 400€
    Ključ u ruke:
    od 650€